収益物件/店舗事務所 鈴鹿市野町西3丁目
所在地
鈴鹿市野町西3丁目
9,800万円
中勢バイパスにアクセス良好!!
・フレスポ鈴鹿まで車で9分(2.4㎞)
・ミニストップ 鈴鹿野町店まで8分(600m)
・スーパーマーケットバロー鈴鹿店まで車で4分(1.5㎞)
・スギドラッグ 鈴鹿野町店まで7分(550m)
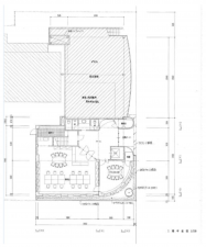
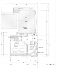
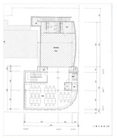
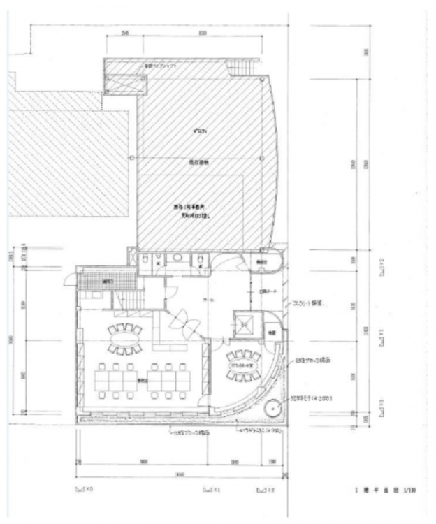
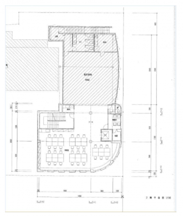
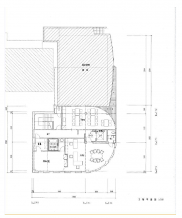
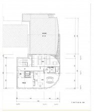
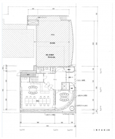
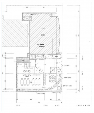
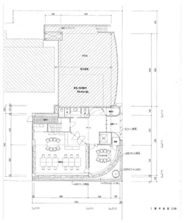
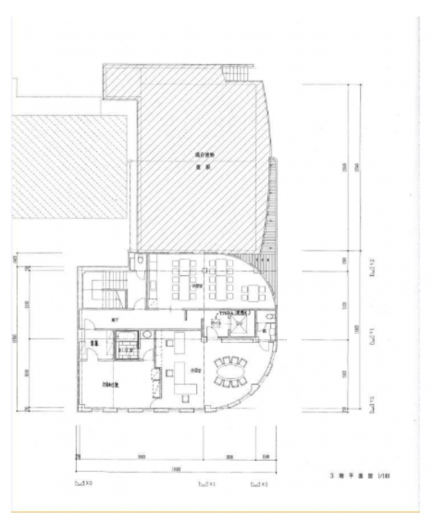
物件概要
- 交通
-
伊勢鉄道 玉垣駅 まで 徒歩10分
- 接道状況
-
北東側 公道12.4m 間口約28.3m
南東側 公道6m 間口約9.9m - 土地面積
- 1186.59㎡ (358.94坪)
- 建物面積
- 580.86㎡ (175.71坪)
- 所在階/階数
- 築年数
-
1998年
(平成10)
4月
築27年 - 建ぺい率
- 60%
- 容積率
- 200%
- 土地権利
- 所有権
- 構造および階数
- 鉄骨造 地上3階建
- 総戸数
- 小学校区
- 中学校区
- 私道負担
- 地目
- 宅地
- 現況
- 居住中
- 引渡時期
- 相談
- 駐車場
- 3台
- 上水道
- 公共
- 下水道
- ガス
- 都市ガス
- 都市計画
- 市街化区域
- 管理形態
- 管理方式
- 用途地域
- 1種住居
- 設備・条件
- 備考
- 取引態様
- 仲介

