中古一戸建て 鈴鹿市桜島町3
所在地
鈴鹿市桜島町3
2,799万円
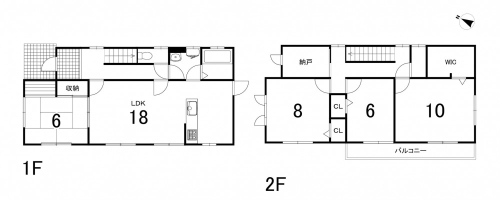
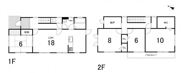
38.20坪
4SLDK
駐車場並列4台可!来客時や複数台所有のご家庭でも安心です♪
納戸やウォークインクローゼット、キッチン収納など収納スペースが充実しており、家事や片付けもスムーズです♪
伊勢鉄道 / 玉垣駅 徒歩9分と、通勤通学に便利です!
コンビニ・商業施設が徒歩圏内に揃う好立地です!
ファミリーマート 鈴鹿桜島二丁目店まで徒歩4 分(290 m)
セブン-イレブン 鈴鹿桜島5丁目店まで徒歩7 分(550 m)
MEGAドン・キホーテUNY 鈴鹿店まで徒歩7 分(550 m)
イオンタウン鈴鹿玉垣まで徒歩13 分(900 m)
ホームセンターバロー鈴鹿店まで徒歩13 分(900 m)
スーパーセンタートライアル玉垣店まで車で5 分(1.4 km)
物件概要
- 交通
-
伊勢鉄道 玉垣駅 まで 徒歩9分
- 接道状況
- 土地面積
- 206.35㎡ (62.42坪)
- 建物面積
- 126.29㎡ (38.20坪)
- 築年数
-
2001年
(平成13)
5月
築24年 - 建ぺい率
- 60%
- 容積率
- 200%
- 土地権利
- 構造および階数
- 軽量鉄骨造
- 小学校区
- 桜島 ( 270m )
- 中学校区
- 白子 ( 1500m )
- 私道負担
- 地目
- 現況
- 引渡時期
- 駐車場
- 上水道
- 下水道
- ガス
- 都市ガス
- 都市計画
- 用途地域
- 1種低層
- 設備・条件
- ルーフバルコニー、システムキッチン、カウンターキッチン、シャンプードレッサー、モニタ付インターホン、洗浄便座、ウォークインクローゼット、追い焚き、駐車場3台分、床下収納、トイレ2箇所
- 備考
- 取引態様
- 仲介

