中古一戸建て 鈴鹿市北堀江2丁目
所在地
鈴鹿市北堀江2丁目
960万円
29.94坪
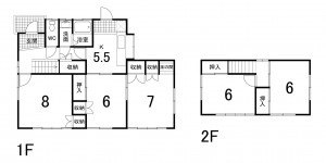
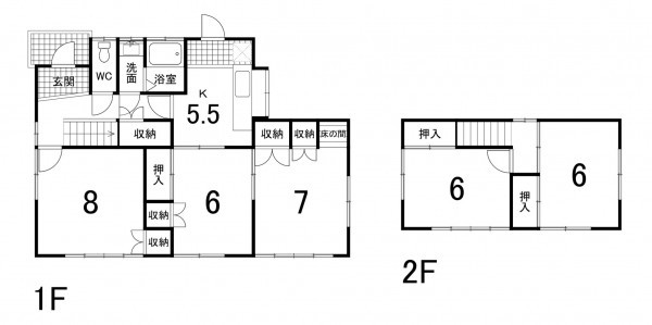
5DK
近鉄「箕田」駅まで徒歩で約7分!通勤・通学に便利♪
・マックスバリュ長太の浦店まで徒歩で3分(1.3㎞)
・ファミリーマート 鈴鹿箕田店まで徒歩で12分(850m)
・ウエルシア鈴鹿下箕田店まで徒歩で9分(650m)
物件概要
- 交通
-
名古屋線 箕田駅 まで 徒歩7分
- 接道状況
- 土地面積
- 201.62㎡ (60.99坪)
- 建物面積
- 99.00㎡ (29.94坪)
- 築年数
-
1970年
(昭和45)
5月
築55年 - 建ぺい率
- 60%
- 容積率
- 100%
- 土地権利
- 所有権
- 構造および階数
- 木造
- 小学校区
- 箕田 ( 750m )
- 中学校区
- 大木 ( 250m )
- 私道負担
- 地目
- 現況
- 引渡時期
- 駐車場
- 上水道
- 公共
- 下水道
- 公共
- ガス
- プロパン個別
- 都市計画
- 用途地域
- 1種低層
- 設備・条件
- 側溝
- 備考
- 取引態様
- 仲介

