中古一戸建て 鈴鹿市若松西5丁目
所在地
鈴鹿市若松西5丁目
3,000万円
40.32坪
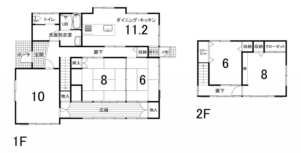
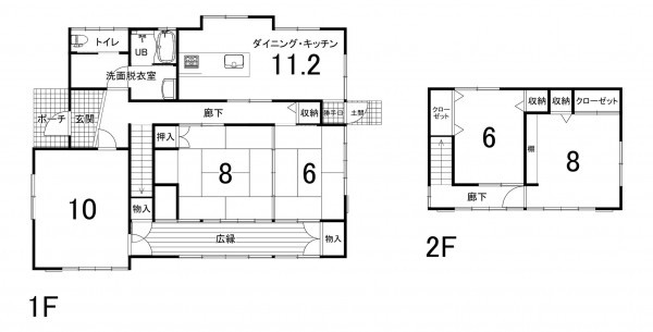
5DK
近鉄「伊勢若松」駅まで徒歩約8分!
急行停車駅なので通勤・通学に便利♪
・マックスバリュ エクスプレス鈴鹿若松店まで徒歩で14分(1.0㎞)
・ファミリーマート 鈴鹿柳町店まで車で3分(1.4㎞)
・スギ薬局 アクシス鈴鹿店まで車で7分(3.4㎞)
物件概要
- 交通
-
名古屋線 伊勢若松駅 まで 徒歩8分
- 接道状況
-
北側 公道2.1m 間口約24.8m
西側 公道2.1m 間口約18.4m - 土地面積
- 公簿 475.32㎡ (143.78坪)
- 建物面積
- 133.30㎡ (40.32坪)
- 築年数
-
1969年
(昭和44)
11月
築56年 - 建ぺい率
- 70%
- 容積率
- 200%
- 土地権利
- 所有権
- 構造および階数
- 木造 地上2階建
- 小学校区
- 若松 ( 1500m )
- 中学校区
- 大木 ( 2600m )
- 私道負担
- 地目
- 宅地
- 現況
- 空
- 引渡時期
- 相談
- 駐車場
- 有
- 上水道
- 公共
- 下水道
- ガス
- プロパン個別
- 都市計画
- 市街化調整区域
- 用途地域
- 設備・条件
- モニタ付インターホン、追い焚き
- 備考
- 取引態様
- 仲介

