中古一戸建て 鈴鹿市上野町
所在地
鈴鹿市上野町
1,599万円
60.23坪
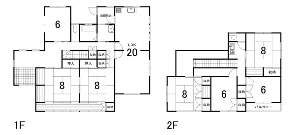
7LDK
東南角地の7LDK中古住宅!庭スペースあり!駐車3台可能!
・オークワ 鈴鹿木田店まで車で6分(2.7㎞)
・ファミリーマート 鈴鹿自由ヶ丘店まで車で6分(2.7㎞)
・マックスバリュ岡田店まで車で10分(4.9㎞)
・ココカラファイン 岡田店まで車で10分(4.9㎞)
物件概要
- 交通
-
関西線 まで 徒歩25分
- 接道状況
- 西側 公道
- 土地面積
- 332.46㎡ (100.56坪)
- 建物面積
- 199.13㎡ (60.23坪)
- 築年数
-
1993年
(平成5)
5月
築32年 - 建ぺい率
- 容積率
- 土地権利
- 所有権
- 構造および階数
- 木造 地上2階建
- 小学校区
- 石薬師 ( 650m )
- 中学校区
- 白鳥 ( 2900m )
- 私道負担
- 無
- 地目
- 現況
- 引渡時期
- 駐車場
- 有 3台
- 上水道
- 公共
- 下水道
- 浄化槽個別
- ガス
- プロパン個別
- 都市計画
- 市街化調整区域
- 用途地域
- 設備・条件
- 駐車場3台分、床下収納、トイレ2箇所
- 備考
- 取引態様
- 仲介

