新築一戸建て 鈴鹿市北玉垣町字小塚39号地
所在地
鈴鹿市北玉垣町字小塚39号地
3,480万円
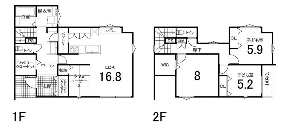
33.68坪
3LDK
家族みんなが片付けやすい工夫が詰まった収納上手なお家♪
・マックスバリュ鈴鹿店まで徒歩で9分(600m)
・セブン-イレブン 鈴鹿北玉垣町店まで徒歩で4分(300m)
・スギ薬局 アクシス鈴鹿店まで徒歩で8分(550m)
物件概要
- 交通
-
鈴鹿線 柳駅 まで 徒歩19分
- 接道状況
- 北側6m
- 土地面積
- 167.57㎡ (50.68坪)
- 建物面積
- 111.37㎡ (33.68坪)
- 築年数
- 2025年 (令和7) 10月
- 建ぺい率
- 容積率
- 土地権利
- 所有権
- 構造および階数
- 木造
- 小学校区
- 玉垣 ( 750m )
- 中学校区
- 千代崎 ( 1500m )
- 私道負担
- 地目
- 現況
- 引渡時期
- 駐車場
- 上水道
- 公共
- 下水道
- 浄化槽個別
- ガス
- 都市計画
- 用途地域
- 1種住居
- 設備・条件
- システムキッチン、カウンターキッチン、IHクッキングヒーター、浴室乾燥機、モニタ付インターホン、洗浄便座、ウォークインクローゼット、追い焚き、駐車場2台分、トイレ2箇所、エレベーター
- 備考
- 取引態様
- 仲介

