新築一戸建て 鈴鹿市南玉垣町字玉垣2号地
所在地
鈴鹿市南玉垣町字玉垣2号地
3,880万円
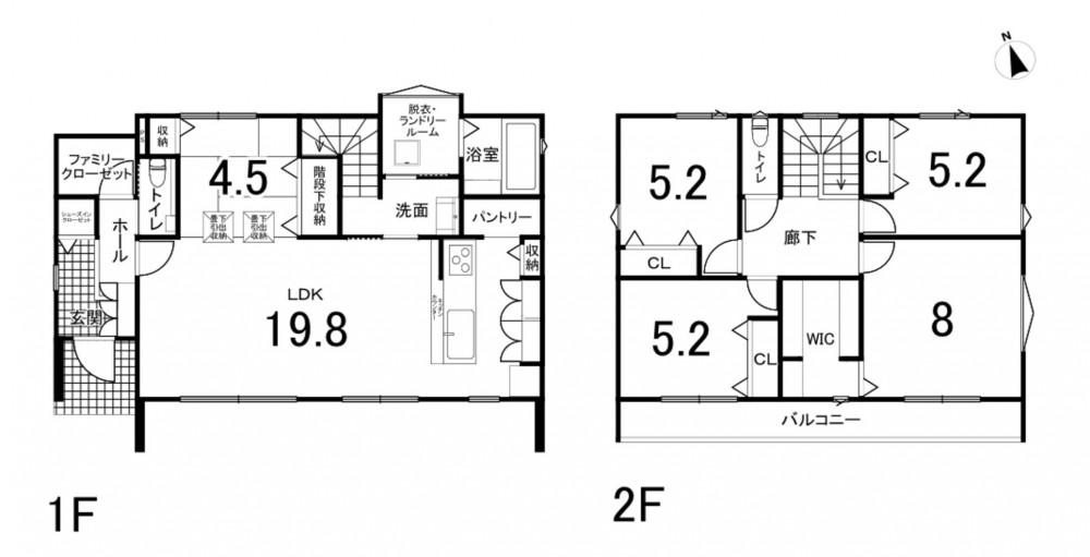
37.82坪
4LDK
生活便利な住環境♪
・そよら鈴鹿白子まで車で12分(5.3㎞)
・ファミリーマート 末広町店まで徒歩で11分(800m)
・イオンタウン鈴鹿玉垣まで車で4分(1.6㎞)
・ドラッグストアコスモス 南玉垣店まで車で5分(1.9㎞)
物件概要
- 交通
-
伊勢鉄道 玉垣駅 まで 徒歩17分
- 接道状況
- 土地面積
- 208.45㎡ (63.05坪)
- 建物面積
- 125.03㎡ (37.82坪)
- 築年数
- 2026年 (令和8) 1月
- 建ぺい率
- 容積率
- 土地権利
- 構造および階数
- 木造
- 小学校区
- 桜島 ( 1300m )
- 中学校区
- 白子 ( 3200m )
- 私道負担
- 地目
- 現況
- 引渡時期
- 駐車場
- 上水道
- 公共
- 下水道
- 浄化槽集中
- ガス
- 都市計画
- 用途地域
- 準工業
- 設備・条件
- オール電化、システムキッチン、カウンターキッチン、IHクッキングヒーター、モニタ付インターホン、ウォークインクローゼット、複層ガラス、駐車場2台分、エコキュート、トイレ2箇所
- 備考
- 取引態様
- 仲介

