新築一戸建て 鈴鹿市磯山3丁目2号棟
所在地
鈴鹿市磯山3丁目2号棟
2,380万円
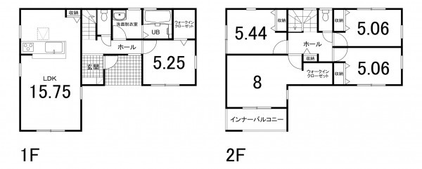
33.56坪
5LDK
26年1月に完成予定、23号線にアクセス良好♪
・そよら鈴鹿白子まで車で10 分(3.8 km)
・セブン-イレブン 鈴鹿磯山3丁目店まで徒歩で4 分(300 m)
・スーパーサンシ 河芸店まで車で6 分(2.5 km)
・クスリのアオキ 寺家店まで徒歩で8 分(550 m)
物件概要
- 交通
-
名古屋線 磯山駅 まで 徒歩8分
- 接道状況
- 土地面積
- 176.47㎡ (53.38坪)
- 建物面積
- 110.96㎡ (33.56坪)
- 築年数
- 2026年 (令和8) 2月
- 建ぺい率
- 60%
- 容積率
- 200%
- 土地権利
- 所有権
- 構造および階数
- 木造 地上2階建
- 小学校区
- 栄 ( 1600m )
- 中学校区
- 天栄 ( 2600m )
- 私道負担
- 地目
- 宅地
- 現況
- 空
- 引渡時期
- 即時
- 駐車場
- 上水道
- 下水道
- ガス
- 都市計画
- 市街化区域
- 用途地域
- 準工業
- 設備・条件
- システムキッチン、シャンプードレッサー、浴室乾燥機、モニタ付インターホン、洗浄便座、ウォークインクローゼット、複層ガラス、追い焚き、駐車場3台分、床下収納、トイレ2箇所
- 備考
- 取引態様
- 仲介

