中古一戸建て 鈴鹿市神戸2丁目
所在地
鈴鹿市神戸2丁目
1,580万円
29.55坪
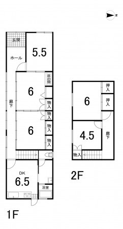
5DK
近鉄鈴鹿線/鈴鹿市駅まで徒歩6分、伊勢鉄道/鈴鹿駅まで徒歩12分と、2路線利用可能です!
ご家族それぞれのライフスタイルに合わせて使えるゆとりある5DKの間取りです♪
駐車スペースは4台分あり、複数台所有のご家庭や来客時にも安心です♪
ローソン 鈴鹿神戸一丁目店まで徒歩3 分(210 m)
スーパー名門 神戸店まで徒歩3 分(230 m)
ココカラファイン 鈴鹿市役所前店まで徒歩6 分(450 m)
業務スーパー 鈴鹿店まで徒歩9 分(600 m)
物件概要
- 交通
-
鈴鹿線 鈴鹿市駅 まで 徒歩6分
- 接道状況
- 西側 公道
- 土地面積
- 320.65㎡ (96.99坪)
- 建物面積
- 97.70㎡ (29.55坪)
- 築年数
-
1976年
(昭和51)
5月
築50年 - 建ぺい率
- 80%
- 容積率
- 200%
- 土地権利
- 所有権
- 構造および階数
- 木造
- 小学校区
- 神戸 ( 350m )
- 中学校区
- 神戸 ( 1800m )
- 私道負担
- 地目
- 現況
- 空
- 引渡時期
- 相談
- 駐車場
- 上水道
- 下水道
- ガス
- 都市計画
- 市街化区域
- 用途地域
- 近隣商業
- 設備・条件
- システムキッチン、モニタ付インターホン、駐車場3台分
- 備考
- 取引態様
- 仲介

