中古一戸建て 鈴鹿市北江島町
所在地
鈴鹿市北江島町
1,549万円
39.82坪
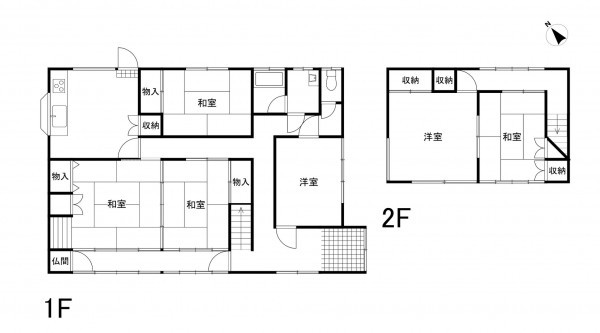
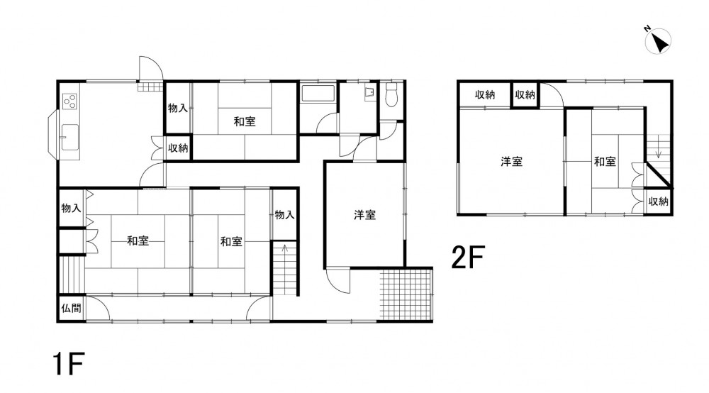
4LDK
周辺に小学校・コンビニ・商業施設が揃う好立地です!
ジップドラッグ 白子店まで徒歩3 分(220 m)
ウエルシア鈴鹿中江島町店まで徒歩7 分(500 m)
ファミリーマート 鈴鹿中江島町店まで徒歩12 分(850 m)
イオンスタイル鈴鹿白子まで車で5 分(1.7 km)
物件概要
- 交通
-
名古屋線 白子駅 まで 徒歩20分
- 接道状況
- 南東側 公道
- 土地面積
- 200.45㎡ (60.63坪)
- 建物面積
- 131.66㎡ (39.82坪)
- 築年数
-
1983年
(昭和58)
9月
築42年 - 建ぺい率
- 60%
- 容積率
- 200%
- 土地権利
- 所有権
- 構造および階数
- 木造
- 小学校区
- 愛宕 ( 350m )
- 中学校区
- 鼓ケ浦 ( 2800m )
- 私道負担
- 地目
- 現況
- 空
- 引渡時期
- 相談
- 駐車場
- 上水道
- 下水道
- ガス
- 都市計画
- 市街化区域
- 用途地域
- 1種住居
- 設備・条件
- 駐車場2台分
- 備考
- 取引態様
- 仲介

