新築一戸建て 鈴鹿市東磯山4丁目1号棟
所在地
鈴鹿市東磯山4丁目1号棟
2,480万円
32.06坪
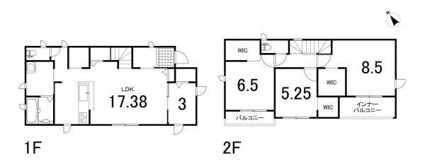
4LDK
【2025年(令和 7年)10月建築 4LDK】
新築ならではの清潔感と安心感が魅力の4LDK戸建て。
ご家族それぞれのライフスタイルに合わせて使えるゆとりある間取りです♪
ウォークインクローゼットや各部屋に収納スペースがあり、すっきり片付けられて、快適に暮らせます♪
近鉄名古屋線/磯山駅まで徒歩8分と、通勤通学に便利です!
クスリのアオキ 寺家店まで徒歩4 分(300 m)
セブン-イレブン 鈴鹿磯山3丁目店まで徒歩7 分(550 m)
ドン・キホーテ 鈴鹿店まで徒歩11 分(750 m)
物件概要
- 交通
-
名古屋線 磯山駅 まで 徒歩9分
- 接道状況
- 土地面積
- 217.50㎡ (65.79坪)
- 建物面積
- 106.00㎡ (32.06坪)
- 築年数
- 2025年 (令和7) 10月
- 建ぺい率
- 60%
- 容積率
- 100%
- 土地権利
- 所有権
- 構造および階数
- 木造 地上2階建
- 小学校区
- 鼓ヶ浦 ( 450m )
- 中学校区
- 鼓ケ浦 ( 1700m )
- 私道負担
- 地目
- 宅地
- 現況
- 引渡時期
- 予定
- 駐車場
- 上水道
- 下水道
- ガス
- 都市計画
- 市街化区域
- 用途地域
- 1種低層
- 設備・条件
- オール電化、システムキッチン、カウンターキッチン、シャンプードレッサー、浴室乾燥機、モニタ付インターホン、洗浄便座、ウォークインクローゼット、複層ガラス、追い焚き、駐車場3台分、床下収納、トイレ2箇所
- 備考
- 取引態様
- 仲介

