中古一戸建て 鈴鹿市桜島町5丁目
所在地
鈴鹿市桜島町5丁目
3,700万円
86.53坪
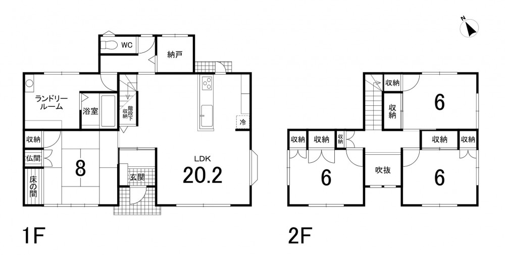
4DK
【2025年10月リフォーム・リノベーション完了予定】
暮らしやすさを追求し、間取りを変更!!
毎日の家事が快適になるランドリールームを新設し、全室収納付きでスッキリ空間を実現!
デザイン性と機能性を兼ね備えた、永く住み続けたくなる理想の住まいです♪
伊勢鉄道/玉垣駅まで徒歩12分と、通勤通学に便利です!
セブン-イレブン 鈴鹿桜島5丁目店まで徒歩3 分(250 m)
ウエルシア鈴鹿桜島店まで徒歩5 分(350 m)
イオンタウン鈴鹿玉垣まで徒歩10 分(700 m)
MEGAドン・キホーテUNY 鈴鹿店まで徒歩12 分(850 m)
スーパーマーケットバロー鈴鹿店まで車で5 分(1.8 km)
物件概要
- 交通
-
伊勢鉄道 玉垣駅 まで 徒歩12分
- 接道状況
- 南側6m 間口約14.5m
- 土地面積
- 公簿 286.07㎡ (86.53坪)
- 建物面積
- 286.07㎡ (86.53坪)
- 築年数
-
1983年
(昭和58)
10月
築42年 - 建ぺい率
- 60%
- 容積率
- 200%
- 土地権利
- 所有権
- 構造および階数
- 木造 地上2階建
- 小学校区
- 桜島 ( 400m )
- 中学校区
- 白子 ( 2300m )
- 私道負担
- 地目
- 宅地
- 現況
- 空
- 引渡時期
- 相談
- 駐車場
- 上水道
- 下水道
- ガス
- 都市計画
- 市街化区域
- 用途地域
- 1種住居
- 設備・条件
- カウンターキッチン、IHクッキングヒーター、食器洗浄乾燥機、シャンプードレッサー、浴室乾燥機、モニタ付インターホン、洗浄便座、追い焚き、駐車場3台分
- 備考
- 取引態様
- 仲介

