中古一戸建て 鈴鹿市磯山2丁目
所在地
鈴鹿市磯山2丁目
850万円
42.70坪
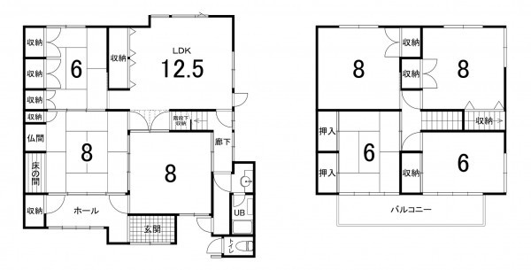
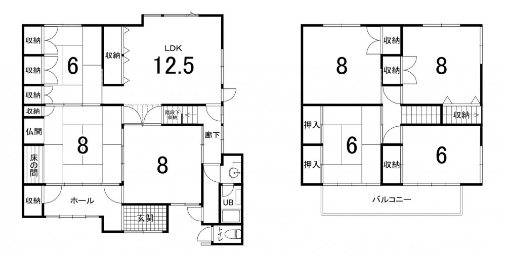
7LDK
7LDKで駅まで徒歩6分!
・そよら鈴鹿白子まで車で12 分(4.2 km)
・ファミリーマート 磯山駅前店まで徒歩で7 分(500 m)
・スーパーサンシ 河芸店まで車で6 分(2.3 km)
・クスリのアオキ 津河芸店まで車で5 分(2.2 km)
物件概要
- 交通
-
名古屋線 磯山駅 まで 徒歩6分
- 接道状況
- 土地面積
- 公簿 188.91㎡ (57.14坪)
- 建物面積
- 141.17㎡ (42.70坪)
- 築年数
-
1983年
(昭和58)
3月
築43年 - 建ぺい率
- 60%
- 容積率
- 200%
- 土地権利
- 所有権
- 構造および階数
- 木造 地上2階建
- 小学校区
- 栄 ( 800m )
- 中学校区
- 天栄 ( 1700m )
- 私道負担
- 無
- 地目
- 宅地
- 現況
- 空
- 引渡時期
- 即時
- 駐車場
- 上水道
- 公共
- 下水道
- 浄化槽個別
- ガス
- プロパン個別
- 都市計画
- 市街化区域
- 用途地域
- 1種住居
- 設備・条件
- 備考
- 取引態様
- 仲介

