新築一戸建て 鈴鹿市寺家5丁目
所在地
鈴鹿市寺家5丁目
1,530万円
24.67坪
4LDK
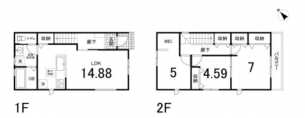
【2025年(令和 7年) 5月建築 3LDK】
新築ならではの清潔感と安心感が魅力の3LDK戸建て。
ウォークインクローゼットや各部屋に収納スペースがあり、すっきり片付けられて、快適に暮らせます♪
近鉄名古屋線/鼓ヶ浦駅まで徒歩5分、近鉄名古屋線/白子駅まで徒歩15分の、2駅利用可能です!
ファミリーマート 鈴鹿寺家五丁目店まで徒歩5 分(350 m)
セブン-イレブン 鈴鹿寺家町店まで徒歩8 分(550 m)
スギ薬局 鈴鹿寺家店まで徒歩6 分(400 m)
物件概要
- 交通
-
名古屋線 鼓ヶ浦駅 まで 徒歩5分
- 接道状況
- 土地面積
- 101.01㎡ (30.55坪)
- 建物面積
- 81.57㎡ (24.67坪)
- 築年数
- 2025年 (令和7) 5月
- 建ぺい率
- 60%
- 容積率
- 160%
- 土地権利
- 所有権
- 構造および階数
- 木造 地上2階建
- 小学校区
- 白子 ( 950m )
- 中学校区
- 鼓ケ浦 ( 700m )
- 私道負担
- 地目
- 宅地
- 現況
- 引渡時期
- 相談
- 駐車場
- 有
- 上水道
- 下水道
- ガス
- 都市計画
- 市街化区域
- 用途地域
- 1種中高
- 設備・条件
- システムキッチン、カウンターキッチン、モニタ付インターホン、洗浄便座、ウォークインクローゼット、駐車場2台分
- 備考
- 取引態様
- 仲介

