土地 鈴鹿市南玉垣町区画番号4
所在地
鈴鹿市南玉垣町区画番号4
1,340万円
53.24坪
商業施設も近く、買い物も便利なので子育て中の世帯にもおすすめです♪
・イオンタウン鈴鹿玉垣まで車で5分(1300m)
・スーパーセンタートライアル玉垣店まで徒歩で10分(700m)
・セブン-イレブン 鈴鹿東玉垣町店まで徒歩で12分(850m)
・ドラッグストアコスモス 南玉垣店まで徒歩で13分(950m)
物件概要
- 交通
-
名古屋線 まで 徒歩28分
- 接道状況
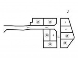
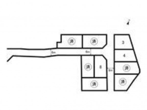
- 西側 公道6m 間口約10m
- 土地面積
- 公簿 176.01㎡ (53.24坪)
- 建ぺい率
- 60%
- 容積率
- 200%
- 土地権利
- セットバック
- 無し
- 小学校区
- 玉垣 ( 1300m )
- 中学校区
- 千代崎 ( 600m )
- 私道負担
- 無
- 建築条件
- ー
- 地目
- 宅地
- 現況
- 更地
- 引渡時期
- 相談
- 上水道
- 公共
- 下水道
- 公共
- ガス
- 都市計画
- 市街化区域
- 用途地域
- 1種住居
- 設備・条件
- 備考
- 取引態様
- 仲介

